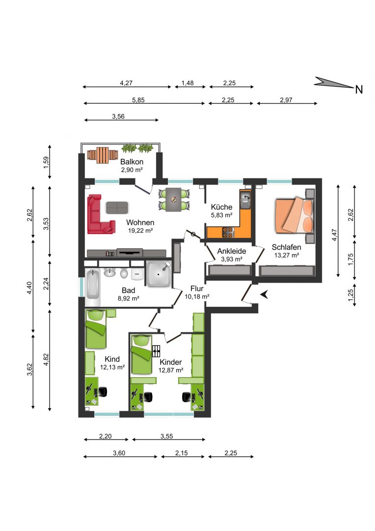
Tageslichtbad mit Wanne, Dusche und WM-Anschluss
zwei Kinderzimmer
Küche mit Fenster
Wohnzimmer mit abgehendem Balkon
Schlafzimmer mit Ankleidebereich
Fußboden: Vinyl-Designbelag
Aufzug im Haus
Keller vorhanden
Vermietung nur mit Wohnberechtigungsschein pMW möglich




